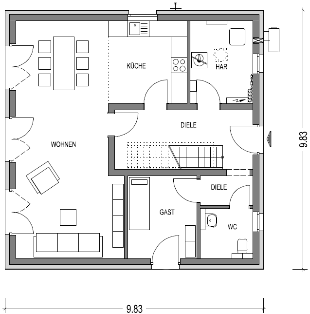
| Erdgeschoss | Wohnfläche |
|---|---|
| Wohnen | 34,12 qm |
| Küche | 9,27 qm |
| Gast | 8,28 qm |
| WC | 3,67 qm |
| Diele | 11,79 qm |
| HAR | 7,31 qm |
| EG Gesamt | 74,44 qm |
| Obergeschoss | Wohnfläche |
|---|---|
| Schlafen | 10,31 qm |
| Ankleide | 6,94 qm |
| Kind I | 14,79 qm |
| Kind II | 15,91 qm |
| Bad | 10,63 qm |
| Abstellraum | 3,82 qm |
| Flur | 11,62 qm |
| DG Gesamt | 74,02 qm |